Nous vous invitons à modifier votre recherche, ou à découvrir la sélection de voyages ci-dessous.
Référence voyage : 377604
Bertrand et Sandrine ont restauré la plus vieille maison du village dans un cadre de pleine nature reposant tout proche du lac de Saint Pardoux. Cette maison est très confortable ; ils l'ont décorée avec goût et harmonie. La décoration industrielle qui mêle le bois et le métal a été entièrement réalisée par Bertrand. Passionné, il en a crée tout le mobilier : lits, table, bibliothèque... Plein d'astuces font de cette maison un lieu atypique mais douillet.
Vous profiterez des deux très beaux étangs où la pêche et la balade rythmeront votre quotidien. Suivant la saison, si vous êtes observateurs, vous pourrez voir ou entendre les animaux (grenouilles, cerfs, chevreuil...) qui vivent dans cet environnement préservé.
Cet établissement respecte les recommandations gouvernementales et fait le maximum pour vous accueillir dans les meilleures conditions. Cependant certaines prestations peuvent être limitées ou indisponibles.
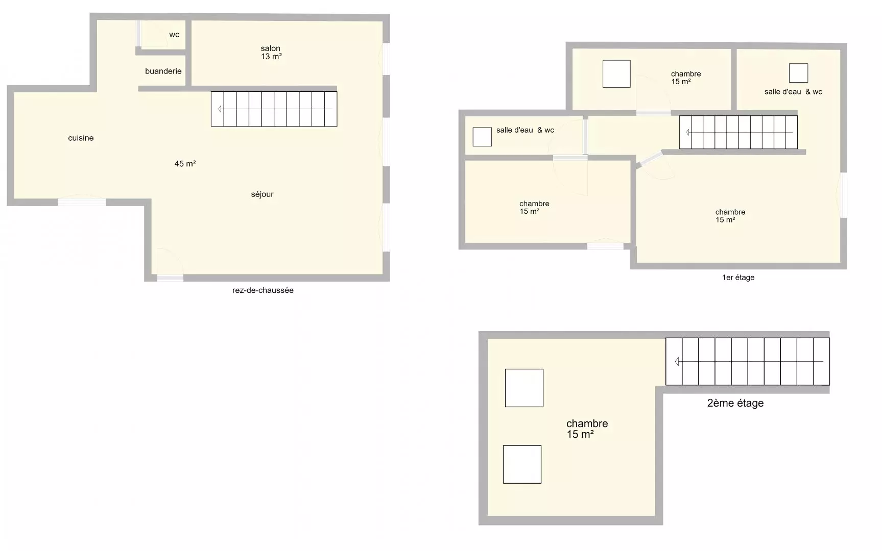
Surface 130 m². Au rez-de-chaussée, séjour avec cuisine et espace détente avec poêle-cheminée. Cette espace ouvre sur une très belle terrasse face aux étangs. wc et coin buanderie. 1er étage : 2 chambres (1 lit 160 cm et 2 lits 90 cm), salle d'eau avec wc. 1 chambre (1 lit 160 cm) avec salle d'eau et wc privé. Cette chambre donne accès au 2ème étage dans une chambre mansardée avec 2 lits 90 cm. Chauffage électrique et bois. Bibliothèque, tennis de table. Draps et linge de maison fournis. On ne fume pas dans la maison Bertrand et Sandrine ont restauré la plus vieille maison du village dans un cadre de pleine nature reposant tout proche du lac de Saint Pardoux. Cette maison est très confortable ; ils l'ont décorée avec goût et harmonie. La décoration industrielle qui mêle le bois et le métal a été entièrement réalisée par Bertrand. Passionné, il en a crée tout le mobilier : lits, table, bibliothèque... Plein d'astuces font de cette maison un lieu atypique mais douillet.
Vous profiterez des deux très beaux étangs où la pêche et la balade rythmeront votre quotidien. Suivant la saison, si vous êtes observateurs, vous pourrez voir ou entendre les animaux (grenouilles, cerfs, chevreuil...) qui vivent dans cet environnement préservé.
Le prix comprend : l'eau, 8 kwh/jour d'électricité, les draps, le linge de toilette et de maison.
Le prix ne comprend pas : l'excédent d'électricité et le chauffage. Ménage à la charge du locataire ou proposé en option.
Surface (m²) : 130
Animaux non Admis
Taxe de séjour (en supplément)
Caution (en euros) : 500
Lave-linge
Sèche-linge
Micro-ondes
Télévision
Lave-vaisselle
Congélateur
Salon de jardin
Jardin
Terrasse
Barbecue
Wifi
Ménage fin de séjour : en supplément
Accès internet
Linge de lit : inclus
Chaise bébé
Lit bébé
Linge de toilette : inclus
Vaisselle et couverts : 1
Nombre de chambres.
Le logement
Nombre d'épis : 4
Nombre d'étoiles : 4
Les boissons et repas non mentionnés
La garantie annulation
Nous vous demandons un peu de patience, nous recherchons le meilleur tarif à vous proposer.
Veuillez patienter, le temps de vous confirmer la disponibilité et le prix.